
• Una vez hecha la reserva, se dispondrá de 72 horas para la
entrega de la cuenta. Pasado ese tiempo, la reserva expirará
de no ser solicitada una extensión.
• Si un personaje proviene de otro rol, no podrá ser presentado
en SHG hasta que tenga la baja oficial en el previo. Esto a
menos que no haya señales de actividad en la cuenta principal
de su anterior rol.
• En un principio habrá un límite de cupos de ingreso de (52),
para facilitar el manejo y control. Llegado a ese límite, se
deberá esperar a que se libere un sitio.
antes de entrar. !
• No se solicita prueba de rol, pero se pide cuidado con la
ortografía.
• Las cuentas deberán llevar las siglas del rol (SHG), de
cualquier forma, en el arroba.
• Este es un rol cerrado con ambientación especifica.
• Se aceptan personaje de anime, manga, canciones,
videojuegos, novelas u otros (a consultar con la cuenta
principal). No es posible ingresar con cuentas de rol basadas
en personas reales, o material que pueda resultar ofensivo o
hiriente.
• El ingreso también se encuentra abierto a todo personaje
original (OC), siendo que su FC (personaje ficticio escogido
para representar apariencia de la creación original) no se
encuentre tomado previamente.
• Las reservas deben hacerse preferiblemente por Mensaje
Directo a la cuenta principal del rol.
antes de entrar. !
• En caso de que observemos desde la administración altos
números de inscripción de personajes de un mismo elenco,
nos reservamos el derecho a cerrar los cupos de la serie en
cuestión temporalmente. Esto se dará hasta que se observe
una correcta integración de todos en el espacio del rol. Una
vez se vea que dichos personajes están bien asentados y se
relacionen más bien con todos en el rol, sean de la misma
serie o no, se podría volver a aceptar más elenco de esa serie
en concreto.
• Al momento de reservar, se debe dar una frase oculta a la
administración. Esta se encuentra oculta entre las normas.
• Se debe seguir a todos los otros miembros del rol, sin
excepción, además de la cuenta principal del rol y sus
secundarias. Habrá correspondientes listas señalando a los miembros ya presentados.

• Esta terminantemente prohibido el seguir a cuentas de fuera
del rol, así como también el interactuar con ellas. Esto incluye
a quienes aún no han sido presentados por la cuenta
principal.
• El máximo de cuentas permitidas es de dos en un principio,
con una espera de una semana entre cada cuenta nueva tras
ello. De acuerdo al compromiso y participación de cada
usuario, es posible optar a una tercera y sucesivas, además
de reducir el tiempo de espera.
• La administración se reserva el derecho a conceder o no
mayor número de cuentas a los usuarios, de acuerdo a su
participación con sus personajes ya presentes en el rol y
aptitudes.
sobre ocs. !
• Se debe indicar que un personaje es OC al momento de realizada la reserva.
• No es obligatorio al momento de ingresar el que cada personaje original cuente con una ficha elaborada. Si se solicitarán indefectiblemente los siguientes datos, esenciales para la participación del personaje en las actividades: Nombre Completo, Altura, Peso, Edad, y Pronombres de
Preferencia.
• No serán presentados los personajes que no cuenten con esta información al momento de ingresar.
ambientación !
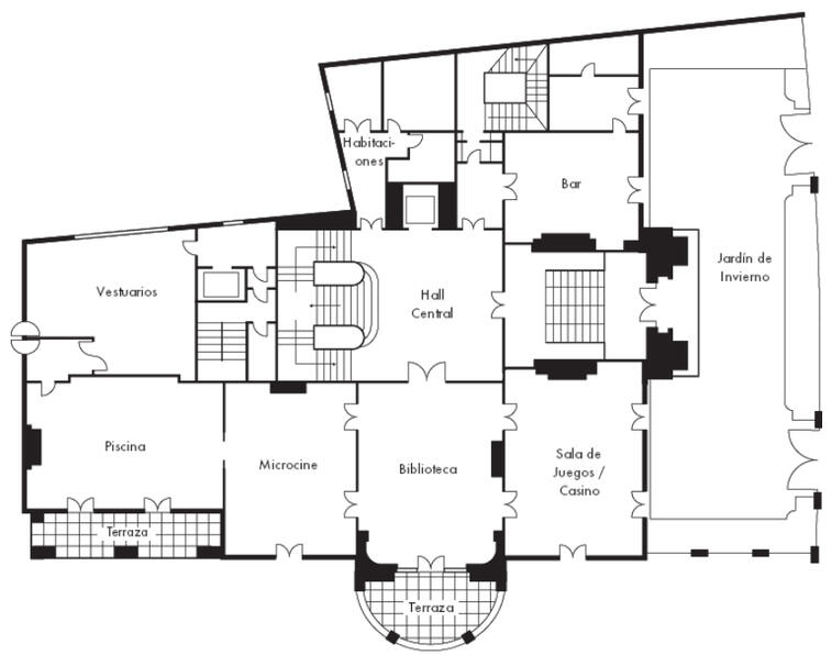
Ubicado a los pies de la montaña del mismo nombre, el Hotel Shoganai se hace presente. Una mansión de principios del siglo veinte de estilo francés, adecuada a las comodidades modernas, donde se hacen presentes el glamour y el lujo. Reúnase con colegas y amigos para tomar cócteles en nuestro bar y pruebe nuestros selectos platos en el restaurante, o disfrute de una escapada relajante a nuestro jardín de invierno.

El Hotel Shoganai es el sitio donde viajeros de distintos orígenes confluyen, en busca de descanso o refugio. Un edificio imponente, donde cada habitación es una amplia suites de lujo con baño de mármol, reconfortantes lechos y amplia selección de amenities. Cada uno de los cuartos tienen un diseño entre clásico y contemporáneo, que reflejan la tradición y sofisticación local.Se puede escoger trabajar en el hotel, atendiendo a los huéspedes, bajo el mando de la administración. De otra forma, puede pasar su días en la librería, el casino, el spa o el micro cine, entre tantos entretenimientos a su disposición.

Pasado ese tiempo, se procederá a la expulsión. Por supuesto,
podrán reingresar si así desean. Solo se tomará en cuenta la
actividad por TL, la cual debe ser de 10 tweets mínimo.
Menciones, Citas, RTs, conversaciones con pareja y/o
allegados de mayor cercanía; o tweets que no impliquen
interacción directa (caso de pensamientos); quedan excluidos.
• Para poder mostrarse como Ausente, se solicita
encarecidamente el aviso a la cuenta principal. Una vez hecho
esto, el solicitante deberá colocar la sigla “AU” o “Hiatus”
junto a su nick. El tiempo disponible para una ausencia
justificada es de 30 días. Si es necesario contar con más días,
siempre es posible conversarlo con la cuenta principal. Se
tratará con comprensión.
• En caso de querer abandonar el rol, se ruega dar aviso a la
cuenta principal.
• En esta misma línea, se pide poner especial cuidado en evitar
la formación de grupos, o encerrarse en interacciones con tan
solo uno o dos personajes. Nadie desea ser ignorado.
una vez dentro. !
• Las semi-mutaciones están permitidas, por un tiempo de
cinco días, tomando en cuenta que no se haya realizado otra
previa semi mutación en el plazo de treinta días previos.
• En lo que respecta a las mutaciones, se podrán realizar con
previo aviso a la administración. Se espera no exista un uso
exagerado de esto en una sola cuenta.
• Las bienvenidas no son obligatorias, mas se las recomienda.
Tengan en cuenta que en muchas ocasiones la interacción con
otros les ayudará en las actividades del rol, aparte de ayudar
a una mejor integración de quienes ingresen.• Los embarazos están permitidas en el rol, más se debe tener
un mínimo de tiempo de relación de al menos dos mes entre
los padres antes de que se llegue a ello. Misma política se
observa en caso de adopciones.
• Lamentablemente, no permitimos el embarazo en parejas de
dos hombre o mujeres cisgénero. Aquello se compensa con la
posibilidad de adopción abierta a ellos.
• El uso de emojis u emoticones de cualquier tipo está
prohibido.
una vez dentro. !
• Está permitido hablar por TL como user, en caso de ser
necesario. Sin embargo, no se recomienda sobrepasarse de
un máximo de 10 tweets de esta clase por día. Siempre debe
de utilizarse algún separador (//, [, ||, etc.), para
diferenciarles del resto de las interacciones.
• El sexrol está permitido solo mediante menciones y/o mensaje
directo. En caso de ser excesivamente explícito, y generé
incomodidad en alguien, se pedirá si puede pasarse a MD.
• Se recomienda la subida o utilización de imágenes oficiales,
con el cuidado de no ocupar la TL únicamente en esto. De
utilizar o subir fanarts, se pedirá que siempre den créditos al
artista correspondiente de una forma visible para todos. No
está permitida la subida de imágenes NSFW.
• "Cinnamon and sugary / And softly spoken lies..."
• De surgir un conflicto entre miembros del rol, solicitamos sea
solucionado por privado. Es importante marcar la diferencia
entre User y Personaje. De ser solicitado, la administración
para lo posible por mediar.
• Se pide mantener el respeto entre los miembros del rol, y
apegarse a las normas básicas de convivencia. Siempre es
necesario tener en cuenta la comodidad del otro, respecto a
las acciones de los personajes. Aconsejamos preguntar por
privado la opinión del otro User, en caso de actuar de algún
modo que pueda incomodarle.
• No se permite el Godrol o Metarol, sin excusa. Se dará aviso a
quien caiga en esta clase de comportamiento.
• Los cambios temporales en el propio personaje (edad,
genderbender, etc.) están permitidos por un máximo de 48
hs, sin ser necesario el pedir autorización. Se ruega no
hacerlo de modo cotidiano.








